西新宿小林ビル 2階
物件概要
物件番号
237-00225-30物件名
西新宿小林ビル所在地
- 東京都新宿区西新宿7-10-6
- アクセスマップ
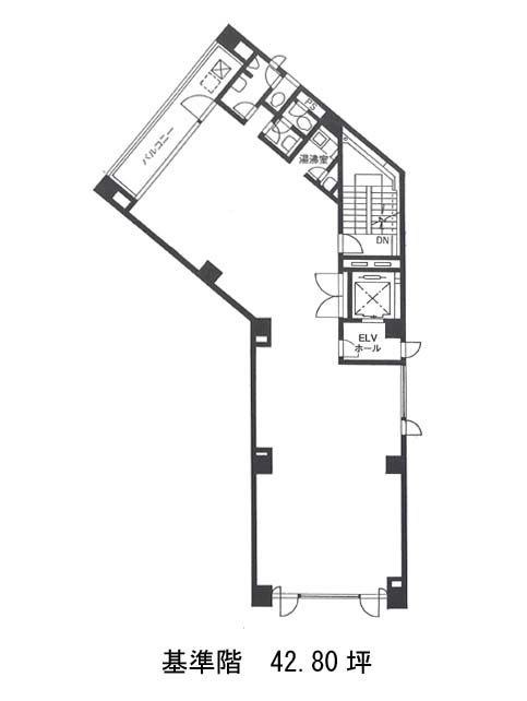
面積
42.80坪賃料(共益費含)
月額1,082,840円(25,300円/坪)
入居日
相談保証金
10,015,200円礼金
なし更新料
なし償却費
10%竣工
1985年10月構造
SRC規模
地上9階/地下1階トイレ
男女別空調
個別空調エレベーター
有セキュリティ
有駐車場
無耐震
新耐震基準基準階天井高
2430mm空室延床面積
128.40坪情報更新日
2026/02/06西新宿小林ビルのテナント募集中区画
| 階数 | 面積 | 賃料(共益費含む) | 保証金 | 入居可能日 | 検討リスト | 詳細 |
|---|---|---|---|---|---|---|
| 2 | 42.80坪 | 1,082,840円/月(25,300円/坪) | 1,001万円 | 相談 | ||
| 3 | 42.80坪 | 1,177,000円/月(27,500円/坪) | 1,380万円 | 2026年8月上旬 | ||
| 4 | 42.80坪 | 1,082,840円/月(25,300円/坪) | 1,001万円 | 即 |
…新着物件
西新宿小林ビルのアクセス
西新宿小林ビルの物件情報
西新宿小林ビル(新宿区西新宿)は新宿駅(A18番出口)から徒歩3分の賃貸オフィスです。青梅街道沿いに位置し、複数路線が利用可能な新宿駅至近の好立地。交通利便性を重視される企業様にとって、魅力的な環境です。
基準階は約43坪、くの字型にやや変形した特徴的な間取りがポイント。ゾーニングやレイアウトの工夫次第で、独自性ある空間演出も可能です。
1フロア1テナント仕様となっており、水回りも専有部内に集約されているため、占有性の高さやプライバシーを重視する方にもおすすめです。セキュリティは機械警備を採用し、安心してご利用いただけます。西新宿小林ビルは新宿駅(A18番出口)の他に新宿西口駅(D4番出口)徒歩3分、西武新宿駅(南口)徒歩5分で利用も可能です。

