7階は現在募集がありません
3フロア募集区画あり

西新宿小林ビル 7階

前の写真 次の写真

物件概要

物件番号

237-00225-70

物件名

西新宿小林ビル

所在地

面積

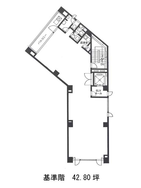
42.80坪

賃料(共益費含)


入居日

募集終了

保証金

礼金

更新料

償却費

竣工

1985年10月

構造

SRC

規模

地上9階/地下1階

トイレ

男女別

空調

個別空調

エレベーター

セキュリティ

駐車場

耐震

新耐震基準

基準階天井高

2430mm

空室延床面積

128.40坪

最寄駅

情報更新日

2026/02/06

西新宿小林ビルのテナント募集中区画

階数 面積 賃料(共益費含む) 保証金 入居可能日 検討リスト 詳細
2 42.80坪 1,082,840円/月(25,300円/坪) 1,001万円 相談
3 42.80坪 1,177,000円/月(27,500円/坪) 1,380万円 2026年8月上旬
4 42.80坪 1,082,840円/月(25,300円/坪) 1,001万円
…新着物件

西新宿小林ビルのアクセス

西新宿小林ビルの物件情報

西新宿小林ビル(新宿区西新宿)は新宿駅(A18番出口)から徒歩3分の賃貸オフィスです。
青梅街道沿いに位置し、複数路線が利用可能な新宿駅至近の好立地。交通利便性を重視される企業様にとって、魅力的な環境です。
基準階は約43坪、くの字型にやや変形した特徴的な間取りがポイント。ゾーニングやレイアウトの工夫次第で、独自性ある空間演出も可能です。
1フロア1テナント仕様となっており、水回りも専有部内に集約されているため、占有性の高さやプライバシーを重視する方にもおすすめです。セキュリティは機械警備を採用し、安心してご利用いただけます。
西新宿小林ビルは新宿駅(A18番出口)の他に新宿西口駅(D4番出口)徒歩3分、西武新宿駅(南口)徒歩5分で利用も可能です。

近隣のエリア・駅から探す