西新宿K-1ビルのテナント募集中区画
| 階数 | 面積 | 賃料(共益費含む) | 保証金 | 入居可能日 | 検討リスト | 詳細 |
|---|---|---|---|---|---|---|
| 4 | 58.45坪 | 1,607,375円/月(27,500円/坪) | 1,028万円 | 即 |
…新着物件
西新宿K-1ビルのアクセス
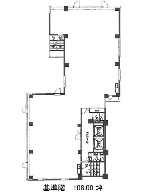
西新宿K-1ビルの物件情報
西新宿K-1ビル(新宿区西新宿)は新宿西口駅(D5番出口)から徒歩3分の賃貸オフィスです。1987年竣工、地上9階地下1階建ての鉄骨鉄筋コンクリート造です。小滝橋通りに面しており人通りも多いため視認性が高いといえるでしょう。また徒歩圏内には飲食店やコンビニ、郵便局、薬局もあるので日常使いや急用にも大変便利です。主な設備面としてはOAフロア、男女トイレ別、個別空調、機械警備、エレベーター2基が完備されているので快適な環境が整っています。基準階面積は108坪でほぼ無柱空間に近いので、広々としておりレイアウトを自由に楽しんでいただけます。西新宿K-1ビルは新宿西口駅(D5番出口)の他に新宿駅(B16番出口)徒歩5分、西武新宿駅(南口)徒歩6分で利用も可能です。

