3階は現在募集がありません
1フロア募集区画あり

西新宿K-1ビル 3階

前の写真 次の写真

物件概要

物件番号

237-00003-40

物件名

西新宿K-1ビル

所在地

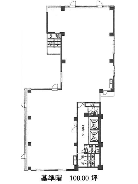
面積

108.00坪

賃料(共益費含)


入居日

募集終了

保証金

礼金

更新料

償却費

竣工

1987年3月

構造

SRC

規模

地上9階/地下1階

トイレ

男女別

空調

個別空調

エレベーター

セキュリティ

駐車場

耐震

新耐震基準

基準階天井高

2900mm

空室延床面積

58.45坪

最寄駅

情報更新日

2025/11/07

西新宿K-1ビルのテナント募集中区画

階数 面積 賃料(共益費含む) 保証金 入居可能日 検討リスト 詳細
4 58.45坪 1,607,375円/月(27,500円/坪) 1,028万円 2025年12月上旬
…新着物件

アクセス

西新宿K-1ビルの物件情報

西新宿K-1ビル(新宿区西新宿)は新宿西口駅(D5番出口)から徒歩3分の賃貸オフィスです。
1987年竣工、地上9階地下1階建ての鉄骨鉄筋コンクリート造です。小滝橋通りに面しており人通りも多いため視認性が高いといえるでしょう。また徒歩圏内には飲食店やコンビニ、郵便局、薬局もあるので日常使いや急用にも大変便利です。主な設備面としてはOAフロア、男女トイレ別、個別空調、機械警備、エレベーター2基が完備されているので快適な環境が整っています。基準階面積は108坪でほぼ無柱空間に近いので、広々としておりレイアウトを自由に楽しんでいただけます。
西新宿K-1ビルは新宿西口駅(D5番出口)の他に新宿駅(B16番出口)徒歩5分、西武新宿駅(南口)徒歩6分で利用も可能です。

近隣のエリア・駅から探す