松岡セントラルビル 3階 A
物件概要
物件番号
237-00055-20物件名
松岡セントラルビル所在地
- 東京都新宿区西新宿1-7-1
- アクセスマップ
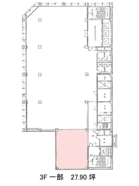
面積
27.90坪賃料(共益費含)
月額920,700円(33,000円/坪)
入居日
即保証金
6,975,000円礼金
なし更新料
相談償却費
なし竣工
1969年12月構造
SRC規模
地上9階/地下4階トイレ
男女別空調
セントラルエレベーター
有セキュリティ
駐車場
有耐震
耐震補強済み基準階天井高
空室延床面積
63.43坪情報更新日
2026/03/16松岡セントラルビルのテナント募集中区画
| 階数 | 面積 | 賃料(共益費含む) | 保証金 | 入居可能日 | 検討リスト | 詳細 |
|---|---|---|---|---|---|---|
| 3 | 27.90坪 | 920,700円/月(33,000円/坪) | 697万円 | 即 | ||
| 3 | 35.53坪 | 1,250,656円/月(35,200円/坪) | 959万円 | 即 |
…新着物件
松岡セントラルビルのアクセス
松岡セントラルビルの物件情報
松岡セントラルビル(新宿区西新宿)は新宿駅(B18番出口)から徒歩1分の賃貸オフィスです。1969年の竣工ですが、耐震補強を実施済みですので、安心してご利用いただけます。基準階坪数は200坪と大変広く、貸室は整形された形をしているので、デスク等の配置はしやすく、フレキシブルにレイアウトを組むことができます。足下に及ぶ大きな窓ですので、採光良好です。OAフロア採用。男女別トイレになっているので、女性にも安心していただけます。駐車場を併設していて、車の利用もしやすいでしょう。松岡セントラルビルは新宿駅(B18番出口)の他に新宿西口駅(D1番出口)徒歩3分、新宿三丁目駅(B11番出口)徒歩6分で利用も可能です。

