エステック情報ビル 20階
物件概要
物件番号
237-00064-380物件名
エステック情報ビル所在地
- 東京都新宿区西新宿1-24-1
- アクセスマップ
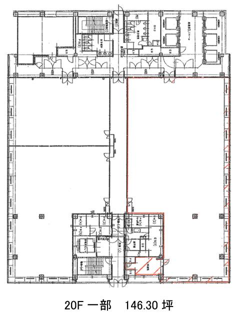
面積
146.30坪賃料(共益費含)
:応相談応相談
入居日
2026年10月上旬保証金
応相談礼金
なし更新料
なし償却費
なし竣工
1992年10月構造
S造規模
地上28階/地下6階トイレ
男女別空調
個別空調エレベーター
有セキュリティ
駐車場
有耐震
新耐震基準基準階天井高
2540mm空室延床面積
987.78坪情報更新日
2025/11/10エステック情報ビルのテナント募集中区画
| 階数 | 面積 | 賃料(共益費含む) | 保証金 | 入居可能日 | 検討リスト | 詳細 |
|---|---|---|---|---|---|---|
| 地下2 | 146.65坪 | 応相談(応相談) | 応相談 | 即 | ||
| 地下2 | 83.05坪 | 応相談(応相談) | 応相談 | 即 | ||
| 6 | 305.78坪 | 応相談(応相談) | 応相談 | 即 | ||
| 20 | 146.30坪 | 応相談(応相談) | 応相談 | 2026年10月上旬 | ||
| 27 | 306.00坪 | 応相談(応相談) | 応相談 | 2026年10月上旬 |
…新着物件
アクセス
エステック情報ビルの物件情報
エステック情報ビル(新宿区西新宿)は新宿駅(7番出口)から徒歩5分の賃貸オフィスです。1992年竣工ですが、新耐震基準に適合していて安心してご入居いただけます。また地下6階・地上28階建てと高層ビルのため視認性も良く、エントランスはガラス張りになっていて、中は広々とした開放感がある空間に仕上がっております。個別空調を完備。フリーアクセスの床を採用していますので、配線に気を取られることなくレイアウトを組むことができます。1階にはコンビニエンスストアがあります。地下1階にも複数のテナントが入っていて利便性が高いです。エステック情報ビルは新宿駅(7番出口)の他に都庁前駅(A1番出口)徒歩5分、新宿西口駅(D1番出口)徒歩7分で利用も可能です。

