Polar西新宿 2階
物件概要
物件番号
237-00698-3物件名
Polar西新宿所在地
- 東京都新宿区西新宿7-22-33
- アクセスマップ
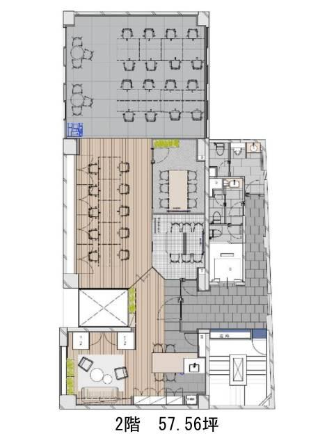
面積
57.56坪賃料(共益費含)
月額1,962,796円(34,100円/坪)
入居日
2026年5月上旬保証金
応相談礼金
なし更新料
なし償却費
なし竣工
1993年11月構造
SRC規模
地上5階/地下1階トイレ
男女別空調
個別空調エレベーター
有セキュリティ
有駐車場
無耐震
新耐震基準基準階天井高
空室延床面積
57.56坪情報更新日
2026/02/25Polar西新宿のテナント募集中区画
| 階数 | 面積 | 賃料(共益費含む) | 保証金 | 入居可能日 | 検討リスト | 詳細 |
|---|---|---|---|---|---|---|
| 2 | 57.56坪 | 1,962,796円/月(34,100円/坪) | 応相談 | 2026年5月上旬 |
…新着物件
Polar西新宿のアクセス
Polar西新宿の物件情報
Polar西新宿(新宿区西新宿)は新宿西口駅(D5番出口)から徒歩7分の賃貸オフィスです。1993年竣工、地上5階地下1階の鉄骨鉄筋コンクリート造です。2022年にリニューアルを行なっており、まるでホテルのような佇まいが特徴的です。内装も洗練されてお洒落な造りで、大変快適な環境といえるでしょう。主な設備面としては、男女トイレ別、空調、エレベーター完備です。室内はエリア分けされており、休憩・集中作業・ミーティングなど目的別に利用できるようになっており、仕事とリフレッシュを切り替えられるのが非常に魅力的です。Polar西新宿は新宿西口駅(D5番出口)の他に大久保駅(南口)徒歩7分、西新宿駅(1番出口)徒歩8分で利用も可能です。

