TK新都心ビル 2階
物件概要
物件番号
237-00091-131物件名
TK新都心ビル所在地
- 東京都新宿区西新宿1-23-1
- アクセスマップ
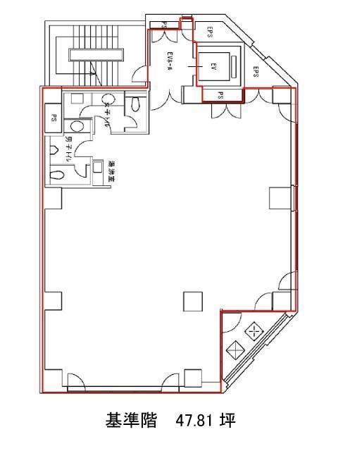
面積
47.81坪賃料(共益費含)
月額1,314,775円(27,500円/坪)
入居日
即保証金
11,952,500円礼金
なし更新料
新1ケ月償却費
1ケ月竣工
1992年11月構造
SRC規模
地上10階/地下2階トイレ
男女別空調
個別空調エレベーター
有セキュリティ
有駐車場
有耐震
新耐震基準基準階天井高
2550mm空室延床面積
119.13坪情報更新日
2025/11/17TK新都心ビルのテナント募集中区画
| 階数 | 面積 | 賃料(共益費含む) | 保証金 | 入居可能日 | 検討リスト | 詳細 |
|---|---|---|---|---|---|---|
| 2 | 47.81坪 | 1,314,775円/月(27,500円/坪) | 1,195万円 | 即 | ||
| 6 | 47.81坪 | 1,314,775円/月(27,500円/坪) | 1,195万円 | 即 | ||
| 7 | 23.51坪 | 646,525円/月(27,500円/坪) | 587万円 | 即 |
…新着物件
アクセス
TK新都心ビルの物件情報
TK新都心ビル(新宿区西新宿)は新宿駅(7番出口)から徒歩3分の賃貸オフィスです。「新宿郵便局前交差点」角地に立地する視認性の高い物件。最寄り駅が近く交通利便性に優れた立地ながら、交差点沿いの開けた雰囲気が開放感を演出しています。
基準階は約48坪。やや変形の間取りで、室内には柱があるためレイアウト時には確認が必要です。水回りは室内に集約されています。
本物件1階にはコンビニが入居しており、ちょっとした買い物にも便利。さらに、斜向かいには新宿郵便局があるため、郵送や事務手続きが多い業態にも適したロケーションです。TK新都心ビルは新宿駅(7番出口)の他に都庁前駅(A1番出口)徒歩6分、新宿西口駅(D1番出口)徒歩8分で利用も可能です。

