7階は現在募集がありません
3フロア募集区画あり

TK新都心ビル 7階

前の写真 次の写真

物件概要

物件番号

237-00091-80

物件名

TK新都心ビル

所在地

面積

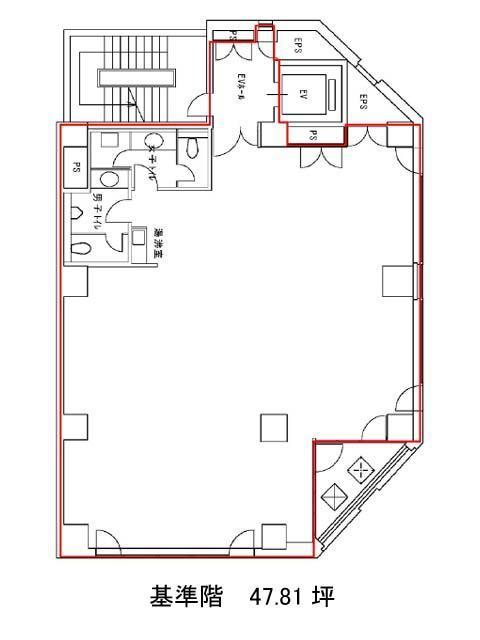
47.81坪

賃料(共益費含)


入居日

募集終了

保証金

礼金

更新料

償却費

竣工

1992年11月

構造

SRC

規模

地上10階/地下2階

トイレ

男女別

空調

個別空調

エレベーター

セキュリティ

駐車場

耐震

新耐震基準

基準階天井高

2550mm

空室延床面積

119.13坪

最寄駅

情報更新日

2025/11/17

TK新都心ビルのテナント募集中区画

階数 面積 賃料(共益費含む) 保証金 入居可能日 検討リスト 詳細
2 47.81坪 1,314,775円/月(27,500円/坪) 1,195万円
6 47.81坪 1,314,775円/月(27,500円/坪) 1,195万円
7 23.51坪 646,525円/月(27,500円/坪) 587万円
…新着物件

アクセス

TK新都心ビルの物件情報

TK新都心ビル(新宿区西新宿)は新宿駅(7番出口)から徒歩3分の賃貸オフィスです。
「新宿郵便局前交差点」角地に立地する視認性の高い物件。最寄り駅が近く交通利便性に優れた立地ながら、交差点沿いの開けた雰囲気が開放感を演出しています。
基準階は約48坪。やや変形の間取りで、室内には柱があるためレイアウト時には確認が必要です。水回りは室内に集約されています。
本物件1階にはコンビニが入居しており、ちょっとした買い物にも便利。さらに、斜向かいには新宿郵便局があるため、郵送や事務手続きが多い業態にも適したロケーションです。
TK新都心ビルは新宿駅(7番出口)の他に都庁前駅(A1番出口)徒歩6分、新宿西口駅(D1番出口)徒歩8分で利用も可能です。

近隣のエリア・駅から探す