6階は現在募集がありません
5フロア募集区画あり

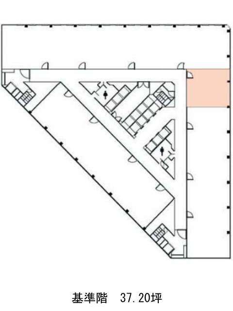
新宿第一生命ビル 6階

前の写真 次の写真

物件概要

物件番号

237-00097-180

物件名

新宿第一生命ビル

所在地

面積

37.20坪

賃料(共益費含)


入居日

募集終了

保証金

礼金

更新料

償却費

竣工

1980年8月

構造

S造

規模

地上26階/地下4階

トイレ

男女別

空調

セントラル

エレベーター

セキュリティ

駐車場

耐震

旧耐震基準

基準階天井高

2600mm

空室延床面積

202.86坪

最寄駅

情報更新日

2025/11/20

新宿第一生命ビルのテナント募集中区画

階数 面積 賃料(共益費含む) 保証金 入居可能日 検討リスト 詳細
1 36.31坪 応相談(応相談) 応相談 2026年4月上旬
2 34.34坪 応相談(応相談) 応相談 2026年4月上旬
10 58.75坪 応相談(応相談) 応相談 2026年3月上旬
22 26.86坪 応相談(応相談) 応相談
25 46.60坪 応相談(応相談) 応相談
…新着物件

アクセス

新宿第一生命ビルの物件情報

新宿第一生命ビル(新宿区西新宿)は都庁前駅(E4番出口)から徒歩1分の賃貸オフィスです。
1980年竣工のビルですが、2011年にトイレ、給湯室のリニューアルが実施されており、2012年にはエレベーターや共用廊下もリニューアルが実施されていて、ビルメンテナンスが行き届いています。外観は落ち着いた赤茶色を基調としています。基準階フロアは約570坪、貸室内の窓からは太陽光が入ってきて明るいオフィスとなるでしょう。空調はセントラル方式、床はOAフロアを採用しており、アクセス面だけでなく、設備面も充実したオフィスビルです。
新宿第一生命ビルは都庁前駅(E4番出口)の他に西新宿駅(E4番出口)徒歩1分、新宿駅(A17番出口)徒歩10分で利用も可能です。

近隣のエリア・駅から探す