KITEN岩本町 4階
物件概要
物件番号
383-00155-20物件名
KITEN岩本町所在地
- 東京都千代田区岩本町1-7-6
- アクセスマップ
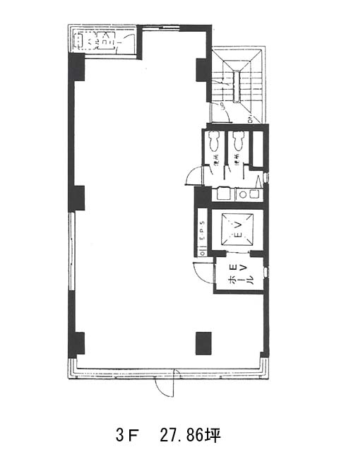
面積
27.86坪賃料(共益費含)
月額796,796円(28,600円/坪)
入居日
相談保証金
応相談礼金
なし更新料
なし償却費
なし竣工
1990年5月構造
RC規模
地上6階トイレ
男女別空調
個別空調エレベーター
有セキュリティ
有駐車場
無耐震
新耐震基準基準階天井高
2400mm空室延床面積
55.71坪情報更新日
2026/02/24KITEN岩本町のテナント募集中区画
| 階数 | 面積 | 賃料(共益費含む) | 保証金 | 入居可能日 | 検討リスト | 詳細 |
|---|---|---|---|---|---|---|
| 2 | 27.85坪 | 796,510円/月(28,600円/坪) | 応相談 | 相談 | ||
| 4 | 27.86坪 | 796,796円/月(28,600円/坪) | 応相談 | 相談 |
…新着物件
KITEN岩本町のアクセス
KITEN岩本町の物件情報
KITEN岩本町(千代田区岩本町)は小伝馬町駅(出口1)から徒歩4分の賃貸オフィスです。KITEN岩本町は小伝馬町駅(出口1)の他に馬喰町駅(2番出口)徒歩5分、岩本町駅(A4番出口)徒歩7分で利用も可能です。

