日伸ビル 3階
物件概要
物件番号
383-00158-30物件名
日伸ビル所在地
- 東京都千代田区岩本町1-3-2
- アクセスマップ
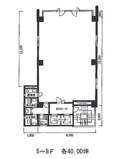
面積
40.00坪賃料(共益費含)
月額704,000円(17,600円/坪)
入居日
2025年12月中旬保証金
5,120,000円礼金
なし更新料
新1ケ月償却費
2ケ月竣工
1985年10月構造
SRC規模
地上9階トイレ
男女別空調
個別空調エレベーター
有セキュリティ
有駐車場
無耐震
新耐震基準基準階天井高
2600mm空室延床面積
40.00坪情報更新日
2025/12/05日伸ビルのテナント募集中区画
| 階数 | 面積 | 賃料(共益費含む) | 保証金 | 入居可能日 | 検討リスト | 詳細 |
|---|---|---|---|---|---|---|
| 3 | 40.00坪 | 704,000円/月(17,600円/坪) | 512万円 | 2025年12月中旬 |
…新着物件
アクセス
日伸ビルの物件情報
日伸ビル(千代田区岩本町)は新日本橋駅(8番出口)から徒歩5分の賃貸オフィスです。1988年竣工、地上9階建てSRC造のビルです。新耐震基準に適合しています。ブラウンの外壁で、落ち着きのある外観をしています。貸室は長方形の無柱空間で、すっきりとした形状をしています。オフィス家具のレイアウトがしやすいでしょう。EV・個別空調・OAフロア・給湯室・男女別トイレ・光ファイバーといった設備仕様をしています。セキュリティとして、機械警備が導入されています。神田金物通り沿いに建ち、周辺は中規模なビルが建ち並ぶエリアです。日伸ビルは新日本橋駅(8番出口)の他に岩本町駅(A5番出口)徒歩5分、小伝馬町駅(出口2)徒歩6分で利用も可能です。

