7階は現在募集がありません
1フロア募集区画あり

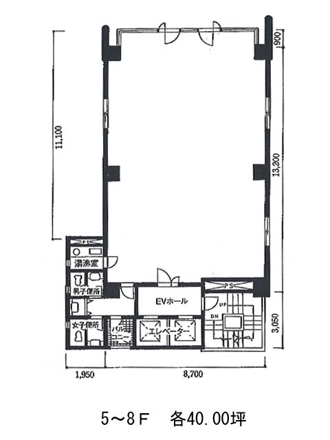
日伸ビル 7階

前の写真 次の写真

物件概要

物件番号

383-00158-60

物件名

日伸ビル

所在地

面積

40.00坪

賃料(共益費含)


入居日

募集終了

保証金

礼金

更新料

償却費

竣工

1985年10月

構造

SRC

規模

地上9階

トイレ

男女別

空調

個別空調

エレベーター

セキュリティ

駐車場

耐震

新耐震基準

基準階天井高

2600mm

空室延床面積

40.00坪

最寄駅

情報更新日

2025/11/17

日伸ビルのテナント募集中区画

階数 面積 賃料(共益費含む) 保証金 入居可能日 検討リスト 詳細
3 40.00坪 704,000円/月(17,600円/坪) 512万円 2026年1月上旬
…新着物件

アクセス

日伸ビルの物件情報

日伸ビル(千代田区岩本町)は新日本橋駅(8番出口)から徒歩5分の賃貸オフィスです。
1988年竣工、地上9階建てSRC造のビルです。新耐震基準に適合しています。ブラウンの外壁で、落ち着きのある外観をしています。貸室は長方形の無柱空間で、すっきりとした形状をしています。オフィス家具のレイアウトがしやすいでしょう。EV・個別空調・OAフロア・給湯室・男女別トイレ・光ファイバーといった設備仕様をしています。セキュリティとして、機械警備が導入されています。神田金物通り沿いに建ち、周辺は中規模なビルが建ち並ぶエリアです。
日伸ビルは新日本橋駅(8番出口)の他に岩本町駅(A5番出口)徒歩5分、小伝馬町駅(出口2)徒歩6分で利用も可能です。

近隣のエリア・駅から探す