山上ビル 8階新着
物件概要
物件番号
393-00004-40物件名
山上ビル所在地
- 東京都千代田区神田岩本町1
- アクセスマップ
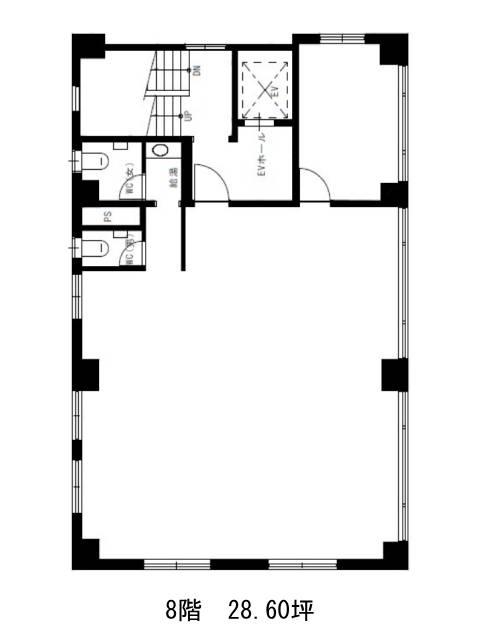
面積
28.60坪賃料(共益費含)
月額534,820円(18,700円/坪)
入居日
2026年8月上旬保証金
3,203,200円礼金
なし更新料
新1ケ月償却費
1ケ月竣工
1966年1月構造
RC規模
地上9階/地下1階トイレ
男女別空調
個別空調エレベーター
有セキュリティ
有駐車場
無耐震
耐震補強済み基準階天井高
空室延床面積
28.60坪情報更新日
2026/04/13山上ビルのテナント募集中区画
| 階数 | 面積 | 賃料(共益費含む) | 保証金 | 入居可能日 | 検討リスト | 詳細 |
|---|---|---|---|---|---|---|
| 8 | 28.60坪 | 534,820円/月(18,700円/坪) | 320万円 | 2026年8月上旬 |
…新着物件
山上ビルのアクセス
山上ビルの物件情報
山上ビル(千代田区神田岩本町)は岩本町駅(A3番出口)から徒歩1分の賃貸オフィスです。山上ビルは岩本町駅(A3番出口)の他に秋葉原駅(5番出口)徒歩2分、神田駅(5番出口)徒歩7分で利用も可能です。

