3階は現在募集がありません
1フロア募集区画あり

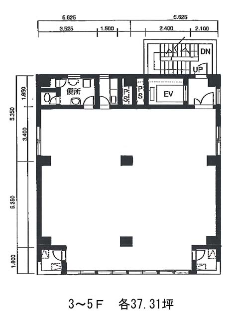
星野ビル 3階

前の写真 次の写真

物件概要

物件番号

397-00016-10

物件名

星野ビル

所在地

面積

37.31坪

賃料(共益費含)


入居日

募集終了

保証金

礼金

更新料

償却費

竣工

1977年8月

構造

RC

規模

地上7階

トイレ

男女共用

空調

個別空調

エレベーター

セキュリティ

駐車場

耐震

旧耐震基準

基準階天井高

空室延床面積

37.31坪

最寄駅

情報更新日

2026/03/27

星野ビルのテナント募集中区画

階数 面積 賃料(共益費含む) 保証金 入居可能日 検討リスト 詳細
6 37.31坪 574,574円/月(15,400円/坪) 328万円
…新着物件

星野ビルのアクセス

星野ビルの物件情報

星野ビル(千代田区神田佐久間町)は秋葉原駅(1番出口)から徒歩5分の賃貸オフィスです。
星野ビルは秋葉原駅(1番出口)の他に浅草橋駅(西口)徒歩8分、岩本町駅(A4番出口)徒歩8分で利用も可能です。

近隣のエリア・駅から探す