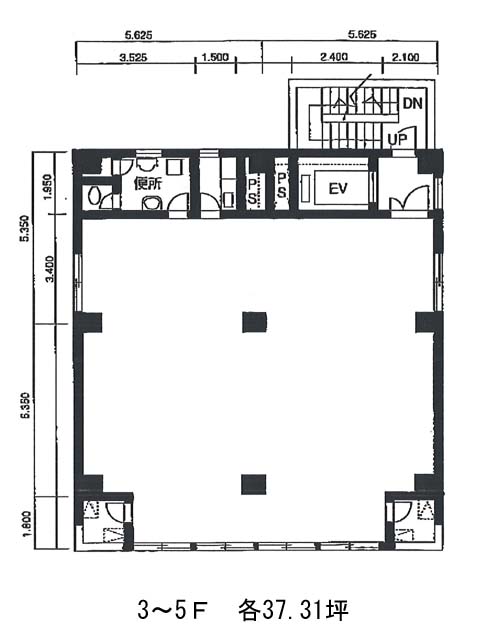
星野ビルのテナント募集中区画
| 階数 | 面積 | 賃料(共益費含む) | 保証金 | 入居可能日 | 検討リスト | 詳細 |
|---|---|---|---|---|---|---|
| 6 | 37.31坪 | 574,574円/月(15,400円/坪) | 328万円 | 即 |
…新着物件
星野ビルのアクセス
星野ビルの物件情報
星野ビル(千代田区神田佐久間町)は秋葉原駅(1番出口)から徒歩5分の賃貸オフィスです。星野ビルは秋葉原駅(1番出口)の他に浅草橋駅(西口)徒歩8分、岩本町駅(A4番出口)徒歩8分で利用も可能です。

