神田佐久間町1丁目計画 9階
物件概要
物件番号
397-00179-15物件名
神田佐久間町1丁目計画所在地
- 東京都千代田区神田佐久間町1-9
- アクセスマップ
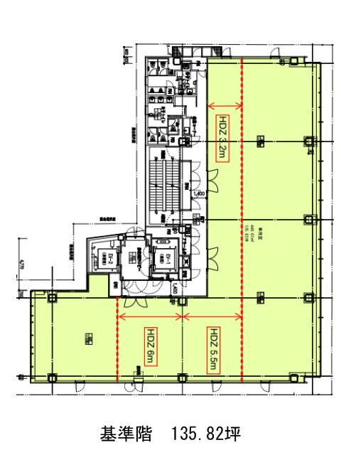
面積
135.82坪賃料(共益費含)
:応相談応相談
入居日
2027年3月上旬保証金
応相談礼金
なし更新料
なし償却費
なし竣工
2027年2月構造
規模
地上12階/地下1階トイレ
男女別空調
個別空調エレベーター
有セキュリティ
駐車場
無耐震
新耐震基準基準階天井高
2800mm空室延床面積
1396.60坪情報更新日
2026/02/06神田佐久間町1丁目計画のテナント募集中区画
…新着物件
神田佐久間町1丁目計画のアクセス
神田佐久間町1丁目計画の物件情報
神田佐久間町1丁目計画(千代田区神田佐久間町)は秋葉原駅(A1番出口)から徒歩2分の賃貸オフィスです。神田佐久間町1丁目計画は秋葉原駅(A1番出口)の他に岩本町駅(A3番出口)徒歩4分、神田駅(6番出口)徒歩8分で利用も可能です。

