3階 301は現在募集がありません
2フロア募集区画あり

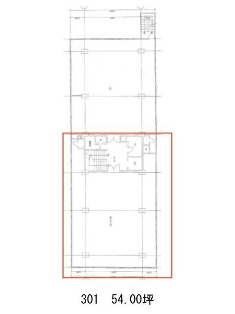
第5東ビル 3階 301

前の写真 次の写真

物件概要

物件番号

397-00026-212

物件名

第5東ビル

所在地

面積

54.00坪

賃料(共益費含)


入居日

募集終了

保証金

礼金

更新料

償却費

竣工

1971年4月

構造

SRC

規模

地上9階/地下1階

トイレ

男女別

空調

個別空調

エレベーター

セキュリティ

駐車場

耐震

旧耐震基準

基準階天井高

2450mm

空室延床面積

87.00坪

最寄駅

情報更新日

2026/04/07

第5東ビルのテナント募集中区画

階数 面積 賃料(共益費含む) 保証金 入居可能日 検討リスト 詳細
2 54.00坪 772,200円/月(14,300円/坪) 432万円
4 33.00坪 504,900円/月(15,301円/坪) 288万円
…新着物件

第5東ビルのアクセス

第5東ビルの物件情報

第5東ビル(千代田区神田佐久間町)は秋葉原駅(4番出口)から徒歩3分の賃貸オフィスです。
1971年竣工、地上9階地下1階建てSRC造のビルです。濃いグレーの外壁で、重厚感のある外観をしています。外壁改修が実施され、築年数を感じさせない清潔感があるでしょう。設備仕様として、EV1基・駐車場・個別空調・OAフロア・男女別トイレ・光ファイバー・喫煙スペース(1階)がそろいます。セキュリティは、機械警備が導入されています。貸室は支柱のでっぱりが少なく、レイアウトのしやすい形状をしています。
第5東ビルは秋葉原駅(4番出口)の他に岩本町駅(A4番出口)徒歩5分、浅草橋駅(西口)徒歩8分で利用も可能です。

近隣のエリア・駅から探す