日本生命神田須田町ビル 地下1階新着
物件概要
物件番号
403-00001-10物件名
日本生命神田須田町ビル所在地
- 東京都千代田区神田須田町2-6-6
- アクセスマップ
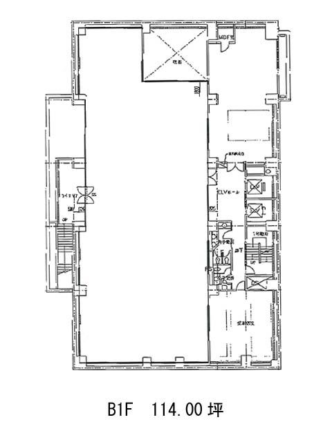
面積
114.00坪賃料(共益費含)
:応相談応相談
入居日
2026年9月保証金
応相談礼金
なし更新料
なし償却費
なし竣工
1990年6月構造
SRC規模
地上10階/地下2階トイレ
男女別空調
セントラル+個別空調エレベーター
有セキュリティ
駐車場
有耐震
新耐震基準基準階天井高
空室延床面積
114.00坪情報更新日
2026/03/16日本生命神田須田町ビルのテナント募集中区画
| 階数 | 面積 | 賃料(共益費含む) | 保証金 | 入居可能日 | 検討リスト | 詳細 |
|---|---|---|---|---|---|---|
| 地下1 | 114.00坪 | 応相談(応相談) | 応相談 | 2026年9月 |
…新着物件
日本生命神田須田町ビルのアクセス
日本生命神田須田町ビルの物件情報
日本生命神田須田町ビル(千代田区神田須田町)は岩本町駅(A1番出口)から徒歩2分の賃貸オフィスです。日本生命神田須田町ビルは岩本町駅(A1番出口)の他に神田駅(5番出口)徒歩4分、秋葉原駅(A1番出口)徒歩5分で利用も可能です。

