須田町ビル 2階
物件概要
物件番号
403-00166-20物件名
須田町ビル所在地
- 東京都千代田区神田須田町1-3-1
- アクセスマップ
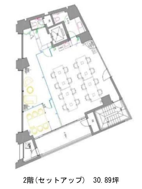
面積
32.65坪賃料(共益費含)
月額933,790円(28,600円/坪)
入居日
2026年2月上旬保証金
4,505,700円礼金
なし更新料
新1ケ月償却費
1ケ月竣工
1993年3月構造
RC規模
地上10階/地下1階トイレ
男女別空調
個別空調エレベーター
有セキュリティ
有駐車場
無耐震
新耐震基準基準階天井高
空室延床面積
93.66坪情報更新日
2025/12/05須田町ビルのテナント募集中区画
| 階数 | 面積 | 賃料(共益費含む) | 保証金 | 入居可能日 | 検討リスト | 詳細 |
|---|---|---|---|---|---|---|
| 1 | 28.36坪 | 873,488円/月(30,800円/坪) | 709万円 | 2026年6月上旬 | ||
| 2 | 32.65坪 | 933,790円/月(28,600円/坪) | 450万円 | 2026年2月上旬 | ||
| 7 | 32.65坪 | 933,790円/月(28,600円/坪) | 450万円 | 即 |
…新着物件
アクセス
須田町ビルの物件情報
須田町ビル(千代田区神田須田町)は小川町駅(A3番出口)から徒歩3分の賃貸オフィスです。須田町ビルは小川町駅(A3番出口)の他に淡路町駅(A3番出口)徒歩3分、神田駅(6番出口)徒歩3分で利用も可能です。

