タイムビル3 2階新着
物件概要
物件番号
403-00063-10物件名
タイムビル3所在地
- 東京都千代田区神田須田町1-5-15
- アクセスマップ
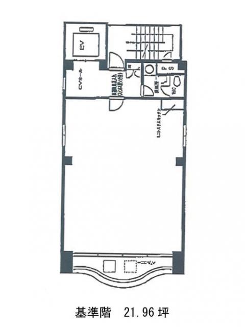
面積
21.96坪賃料(共益費含)
月額398,574円(18,150円/坪)
入居日
2026年7月上旬保証金
2,371,680円礼金
なし更新料
なし償却費
1ケ月竣工
1982年9月構造
S造規模
地上9階トイレ
男女共用空調
個別空調エレベーター
有セキュリティ
有駐車場
無耐震
確認中基準階天井高
空室延床面積
21.96坪情報更新日
2026/03/19タイムビル3のテナント募集中区画
| 階数 | 面積 | 賃料(共益費含む) | 保証金 | 入居可能日 | 検討リスト | 詳細 |
|---|---|---|---|---|---|---|
| 2 | 21.96坪 | 398,574円/月(18,150円/坪) | 237万円 | 2026年7月上旬 |
…新着物件
タイムビル3のアクセス
タイムビル3の物件情報
タイムビル3(千代田区神田須田町)は神田駅(6番出口)から徒歩3分の賃貸オフィスです。タイムビル3は神田駅(6番出口)の他に小川町駅(A1番出口)徒歩4分、淡路町駅(A1番出口)徒歩4分で利用も可能です。

