6階は現在募集がありません
タイムビル3 6階
物件概要
タイムビル3のテナント募集中区画
現在、空室がございません。
アクセス
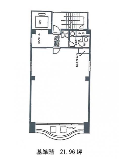
タイムビル3の物件情報
タイムビル3(千代田区神田須田町)は神田駅(6番出口)から徒歩3分の賃貸オフィスです。タイムビル3は神田駅(6番出口)の他に小川町駅(A1番出口)徒歩4分、淡路町駅(A1番出口)徒歩4分で利用も可能です。

