ディアマントビルのテナント募集中区画
| 階数 | 面積 | 賃料(共益費含む) | 保証金 | 入居可能日 | 検討リスト | 詳細 |
|---|---|---|---|---|---|---|
| 10 | 32.52坪 | 608,124円/月(18,700円/坪) | 364万円 | 即 |
…新着物件
ディアマントビルのアクセス
ディアマントビルの物件情報
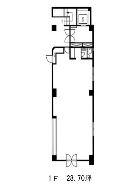
ディアマントビル(千代田区神田須田町)は神田駅(6番出口)から徒歩3分の賃貸オフィスです。外観はライトベージュのシンプルなパネル張り。基準階は33.33坪の長方形に近い間取りでレイアウト効率は高いでしょう。コンパクトなオフィス空間ながらトイレは男女別で用意があり、給湯室とまとめて室内に設置されています。1フロア1テナント仕様ですので、各階の独立性は確保されています。ミニバルコニー付き。
ディアマントビルは靖国通り近くの賃貸事務所ビル。神田駅(地下鉄)・淡路町駅・小川町駅の3駅が徒歩3分でアクセス可能な立地で交通利便性に優れます。また、周辺は飲食店が豊富で、ランチには困らない環境でしょう。ディアマントビルは神田駅(6番出口)の他に淡路町駅(A1番出口)徒歩3分、小川町駅(A1番出口)徒歩3分で利用も可能です。

