6階は現在募集がありません
1フロア募集区画あり

ディアマントビル 6階

前の写真 次の写真

物件概要

物件番号

403-00007-50

物件名

ディアマントビル

所在地

面積

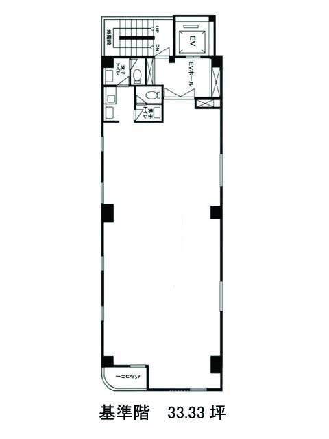
33.33坪

賃料(共益費含)


入居日

募集終了

保証金

礼金

更新料

償却費

竣工

1984年8月

構造

S造

規模

地上10階

トイレ

男女別

空調

個別空調

エレベーター

セキュリティ

駐車場

耐震

新耐震基準

基準階天井高

空室延床面積

28.70坪

最寄駅

情報更新日

2026/04/03

ディアマントビルのテナント募集中区画

階数 面積 賃料(共益費含む) 保証金 入居可能日 検討リスト 詳細
1 28.70坪 662,970円/月(23,100円/坪) 516万円 2026年5月上旬
…新着物件

ディアマントビルのアクセス

ディアマントビルの物件情報

ディアマントビル(千代田区神田須田町)は神田駅(6番出口)から徒歩3分の賃貸オフィスです。
外観はライトベージュのシンプルなパネル張り。基準階は33.33坪の長方形に近い間取りでレイアウト効率は高いでしょう。コンパクトなオフィス空間ながらトイレは男女別で用意があり、給湯室とまとめて室内に設置されています。1フロア1テナント仕様ですので、各階の独立性は確保されています。ミニバルコニー付き。
ディアマントビルは靖国通り近くの賃貸事務所ビル。神田駅(地下鉄)・淡路町駅・小川町駅の3駅が徒歩3分でアクセス可能な立地で交通利便性に優れます。また、周辺は飲食店が豊富で、ランチには困らない環境でしょう。
ディアマントビルは神田駅(6番出口)の他に淡路町駅(A1番出口)徒歩3分、小川町駅(A1番出口)徒歩3分で利用も可能です。

近隣のエリア・駅から探す