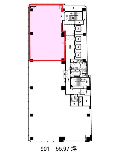
秋葉原フコク生命ビル 9階 901
物件概要
物件番号
405-00001-183物件名
秋葉原フコク生命ビル所在地
- 東京都千代田区神田相生町1
- アクセスマップ
面積
55.97坪賃料(共益費含)
:応相談応相談
入居日
2027年4月上旬保証金
応相談礼金
なし更新料
なし償却費
なし竣工
2007年8月構造
S造規模
地上16階/地下2階トイレ
男女別空調
個別空調エレベーター
有セキュリティ
駐車場
有耐震
新耐震基準基準階天井高
2700mm空室延床面積
563.96坪情報更新日
2026/02/18秋葉原フコク生命ビルのテナント募集中区画
| 階数 | 面積 | 賃料(共益費含む) | 保証金 | 入居可能日 | 検討リスト | 詳細 |
|---|---|---|---|---|---|---|
| 8 | 169.33坪 | 応相談(応相談) | 応相談 | 2027年4月上旬 | ||
| 9 | 55.97坪 | 応相談(応相談) | 応相談 | 2027年4月上旬 | ||
| 12 | 169.33坪 | 応相談(応相談) | 応相談 | 2026年8月上旬 | ||
| 15 | 169.33坪 | 応相談(応相談) | 応相談 | 2026年7月上旬 |
…新着物件
秋葉原フコク生命ビルのアクセス
秋葉原フコク生命ビルの物件情報
秋葉原フコク生命ビル(千代田区神田相生町)は秋葉原駅(出口)から徒歩2分の賃貸オフィスです。再開発されたJR秋葉原駅前のロータリーに面した立地です。1階にはファーストフード店が入っていて来客時も迷われることはないでしょう。青みがかった全面ガラスカーテンウォールの外観は清涼感のある爽やかなイメージです。室内は天井高2700mmの開放的な無柱空間で、床は配線の決めやすいフリーアクセスなのでレイアウトの自由度は大変高くなっています。周囲には飲食店やコンビニが多く、向かいのヨドバシカメラマルチメディアAkibaなど商業施設もあるのでランチ時も仕事後のお買い物にも大変便利です。秋葉原フコク生命ビルは秋葉原駅(出口)の他に岩本町駅(A3番出口)徒歩7分、末広町駅(1番出口)徒歩8分で利用も可能です。

