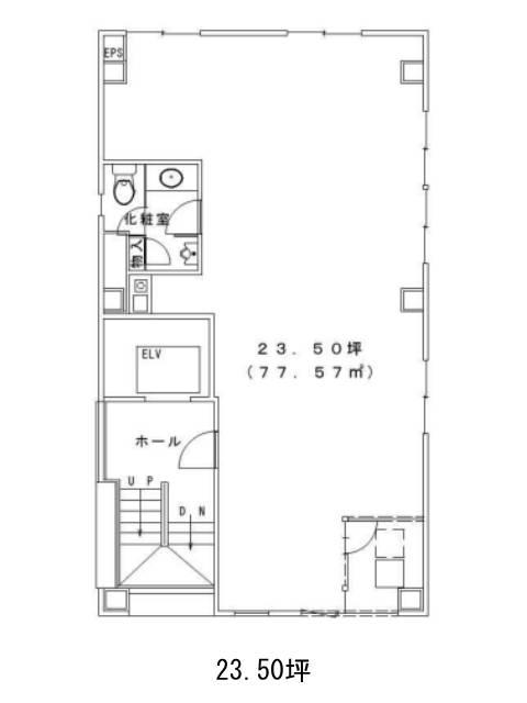
三好ビル 2階
物件概要
三好ビルのテナント募集中区画
| 階数 | 面積 | 賃料(共益費含む) | 保証金 | 入居可能日 | 検討リスト | 詳細 |
|---|---|---|---|---|---|---|
| 2 | 23.50坪 | 374,825円/月(15,950円/坪) | 220万円 | 即 |
…新着物件
三好ビルのアクセス
三好ビルの物件情報
三好ビル(千代田区神田多町)は神田駅(5番出口)から徒歩3分の賃貸オフィスです。三好ビルは神田駅(5番出口)の他に小川町駅(A1番出口)徒歩4分、淡路町駅(A1番出口)徒歩4分で利用も可能です。

