Yunuoビル 2階
物件概要
物件番号
410-00026-10物件名
Yunuoビル所在地
- 東京都千代田区神田東松下町23-1
- アクセスマップ
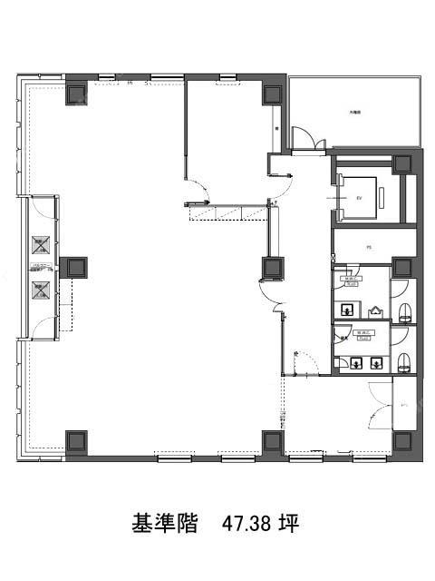
面積
47.38坪賃料(共益費含)
月額990,242円(20,900円/坪)
入居日
相談保証金
5,500,013円礼金
1ケ月更新料
なし償却費
1ケ月竣工
1992年3月構造
SRC規模
地上7階/地下1階トイレ
男女別空調
エレベーター
有セキュリティ
有駐車場
無耐震
新耐震基準基準階天井高
空室延床面積
47.38坪情報更新日
2025/11/12Yunuoビルのテナント募集中区画
| 階数 | 面積 | 賃料(共益費含む) | 保証金 | 入居可能日 | 検討リスト | 詳細 |
|---|---|---|---|---|---|---|
| 2 | 47.38坪 | 990,242円/月(20,900円/坪) | 550万円 | 相談 |
…新着物件
Yunuoビルのアクセス
Yunuoビルの物件情報
Yunuoビル(千代田区神田東松下町)は岩本町駅(A1番出口)から徒歩1分の賃貸オフィスです。外観はガラスを貴重としたグリッドデザイン。基準階は47.38坪です。トイレは男女別でエレベーターホール側(室外)に設置されています。
神田グラスゲートは岩本町駅A1出口の利用が便利です。靖国通りに程近く、通り沿いは郵便局・飲食店・カフェがあります。また、徒歩5分程度北上すると秋葉原エリアに入り、飲食店や販売店が大変充実してきます。手土産の購入などにも便利でしょう。Yunuoビルは岩本町駅(A1番出口)の他に秋葉原駅(5番出口)徒歩4分、神田駅(5番出口)徒歩5分で利用も可能です。

