5階は現在募集がありません
Yunuoビル 5階


物件概要
Yunuoビルのテナント募集中区画
現在、空室がございません。
アクセス
Yunuoビルの物件情報
Yunuoビル(千代田区神田東松下町)は岩本町駅(A1番出口)から徒歩1分の賃貸オフィスです。
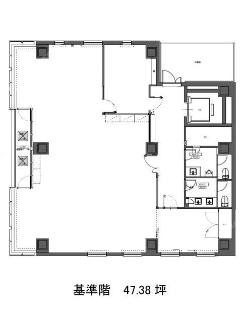
外観はガラスを貴重としたグリッドデザイン。基準階は47.38坪です。トイレは男女別でエレベーターホール側(室外)に設置されています。
神田グラスゲートは岩本町駅A1出口の利用が便利です。靖国通りに程近く、通り沿いは郵便局・飲食店・カフェがあります。また、徒歩5分程度北上すると秋葉原エリアに入り、飲食店や販売店が大変充実してきます。手土産の購入などにも便利でしょう。
Yunuoビルは岩本町駅(A1番出口)の他に秋葉原駅(5番出口)徒歩4分、神田駅(5番出口)徒歩5分で利用も可能です。