Yunuoビルのテナント募集中区画
| 階数 | 面積 | 賃料(共益費含む) | 保証金 | 入居可能日 | 検討リスト | 詳細 |
|---|---|---|---|---|---|---|
| 2 | 47.38坪 | 990,242円/月(20,900円/坪) | 550万円 | 相談 |
…新着物件
Yunuoビルのアクセス
Yunuoビルの物件情報
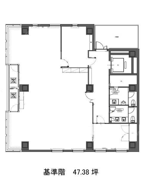
Yunuoビル(千代田区神田東松下町)は岩本町駅(A1番出口)から徒歩1分の賃貸オフィスです。外観はガラスを貴重としたグリッドデザイン。基準階は47.38坪です。トイレは男女別でエレベーターホール側(室外)に設置されています。
神田グラスゲートは岩本町駅A1出口の利用が便利です。靖国通りに程近く、通り沿いは郵便局・飲食店・カフェがあります。また、徒歩5分程度北上すると秋葉原エリアに入り、飲食店や販売店が大変充実してきます。手土産の購入などにも便利でしょう。Yunuoビルは岩本町駅(A1番出口)の他に秋葉原駅(5番出口)徒歩4分、神田駅(5番出口)徒歩5分で利用も可能です。

