7階は現在募集がありません
1フロア募集区画あり

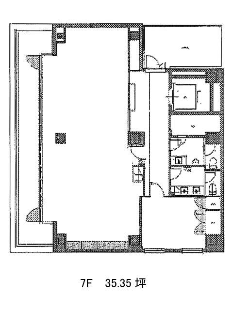
Yunuoビル 7階

前の写真 次の写真

物件概要

物件番号

410-00026-15

物件名

Yunuoビル

所在地

面積

35.34坪

賃料(共益費含)


入居日

募集終了

保証金

礼金

更新料

償却費

竣工

1992年3月

構造

SRC

規模

地上7階/地下1階

トイレ

男女別

空調

エレベーター

セキュリティ

駐車場

耐震

新耐震基準

基準階天井高

空室延床面積

47.38坪

最寄駅

情報更新日

2025/11/12

Yunuoビルのテナント募集中区画

階数 面積 賃料(共益費含む) 保証金 入居可能日 検討リスト 詳細
2 47.38坪 990,242円/月(20,900円/坪) 550万円 相談
…新着物件

Yunuoビルのアクセス

Yunuoビルの物件情報

Yunuoビル(千代田区神田東松下町)は岩本町駅(A1番出口)から徒歩1分の賃貸オフィスです。
外観はガラスを貴重としたグリッドデザイン。基準階は47.38坪です。トイレは男女別でエレベーターホール側(室外)に設置されています。
神田グラスゲートは岩本町駅A1出口の利用が便利です。靖国通りに程近く、通り沿いは郵便局・飲食店・カフェがあります。また、徒歩5分程度北上すると秋葉原エリアに入り、飲食店や販売店が大変充実してきます。手土産の購入などにも便利でしょう。
Yunuoビルは岩本町駅(A1番出口)の他に秋葉原駅(5番出口)徒歩4分、神田駅(5番出口)徒歩5分で利用も可能です。

近隣のエリア・駅から探す