大竹ビルのテナント募集中区画
| 階数 | 面積 | 賃料(共益費含む) | 保証金 | 入居可能日 | 検討リスト | 詳細 |
|---|---|---|---|---|---|---|
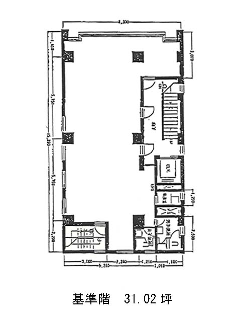
| 3 | 31.02坪 | 528,891円/月(17,050円/坪) | 387万円 | 即 | ||
| 5 | 31.02坪 | 528,856円/月(17,050円/坪) | 387万円 | 即 |
…新着物件
大竹ビルのアクセス
大竹ビルの物件情報
大竹ビル(千代田区神田北乗物町)は神田駅(東口)から徒歩3分の賃貸オフィスです。神田駅はJR三線の他に東京メトロ銀座線が利用可能ですので、都内各所へアクセスが便利でしょう。また、当ビルから駅にかけて様々なジャンルの飲食店が軒を連ねていますので、ランチなどを選ぶ楽しみがありそうです。郵便局や銀行支店など事務関係の作業に必要な施設も周辺に揃っています。
大竹ビルの外観はベージュの吹付けとブラウンのパネルで構成されています。基準階は約30坪。コンパクトなオフィス空間ながらトイレは男女別で確保されているため、気兼ねなくご使用いただけるかと思います。1999年にリニューアル済みの賃貸事務所ビルです。大竹ビルは神田駅(東口)の他に新日本橋駅(6番出口)徒歩6分、岩本町駅(A5番出口)徒歩6分で利用も可能です。

