大竹ビル 5階
物件概要
物件番号
415-00011-30物件名
大竹ビル所在地
- 東京都千代田区神田北乗物町12
- アクセスマップ
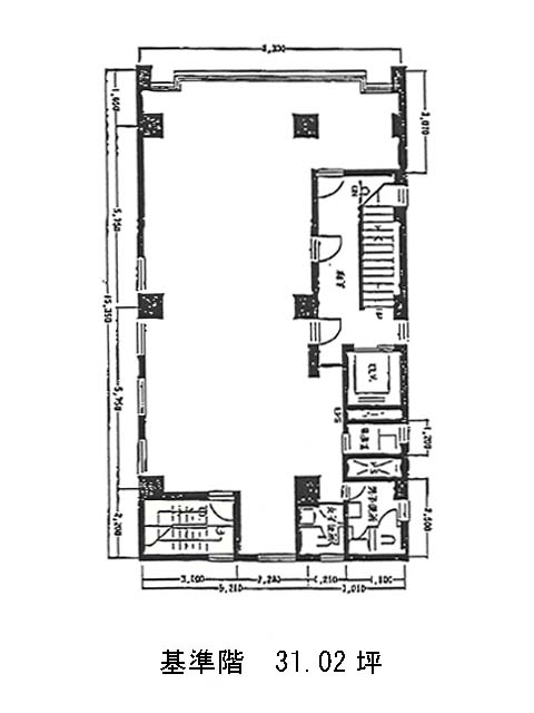
面積
31.02坪賃料(共益費含)
月額528,856円(17,050円/坪)
入居日
即保証金
3,877,500円礼金
なし更新料
新1ケ月償却費
2ケ月竣工
1978年3月構造
規模
地上7階/地下1階トイレ
男女別空調
個別空調エレベーター
有セキュリティ
駐車場
無耐震
旧耐震基準基準階天井高
空室延床面積
62.04坪情報更新日
2026/02/09大竹ビルのテナント募集中区画
| 階数 | 面積 | 賃料(共益費含む) | 保証金 | 入居可能日 | 検討リスト | 詳細 |
|---|---|---|---|---|---|---|
| 3 | 31.02坪 | 528,891円/月(17,050円/坪) | 387万円 | 即 | ||
| 5 | 31.02坪 | 528,856円/月(17,050円/坪) | 387万円 | 即 |
…新着物件
大竹ビルのアクセス
大竹ビルの物件情報
大竹ビル(千代田区神田北乗物町)は神田駅(東口)から徒歩3分の賃貸オフィスです。神田駅はJR三線の他に東京メトロ銀座線が利用可能ですので、都内各所へアクセスが便利でしょう。また、当ビルから駅にかけて様々なジャンルの飲食店が軒を連ねていますので、ランチなどを選ぶ楽しみがありそうです。郵便局や銀行支店など事務関係の作業に必要な施設も周辺に揃っています。
大竹ビルの外観はベージュの吹付けとブラウンのパネルで構成されています。基準階は約30坪。コンパクトなオフィス空間ながらトイレは男女別で確保されているため、気兼ねなくご使用いただけるかと思います。1999年にリニューアル済みの賃貸事務所ビルです。大竹ビルは神田駅(東口)の他に新日本橋駅(6番出口)徒歩6分、岩本町駅(A5番出口)徒歩6分で利用も可能です。

