フォーライフオフィス東神田 6階
物件概要
物件番号
421-00013-50物件名
フォーライフオフィス東神田所在地
- 東京都千代田区東神田2-10-16
- アクセスマップ
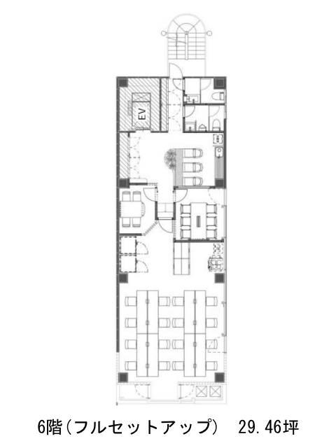
面積
29.46坪賃料(共益費含)
月額842,556円(28,600円/坪)
入居日
2026年5月上旬保証金
応相談礼金
なし更新料
なし償却費
なし竣工
1992年6月構造
S造規模
地上9階トイレ
男女別空調
個別空調エレベーター
有セキュリティ
有駐車場
無耐震
新耐震基準基準階天井高
空室延床面積
58.92坪情報更新日
2026/03/18フォーライフオフィス東神田のテナント募集中区画
| 階数 | 面積 | 賃料(共益費含む) | 保証金 | 入居可能日 | 検討リスト | 詳細 |
|---|---|---|---|---|---|---|
| 6 | 29.46坪 | 842,556円/月(28,600円/坪) | 応相談 | 2026年5月上旬 | ||
| 8 | 29.46坪 | 842,556円/月(28,600円/坪) | 応相談 | 2026年8月上旬 |
…新着物件
フォーライフオフィス東神田のアクセス
フォーライフオフィス東神田の物件情報
フォーライフオフィス東神田(千代田区東神田)は馬喰町駅(6番出口)から徒歩5分の賃貸オフィスです。フォーライフオフィス東神田は馬喰町駅(6番出口)の他に浅草橋駅(西口)徒歩6分、岩本町駅(A4番出口)徒歩7分で利用も可能です。

