S-GATE秋葉原 5階
物件概要
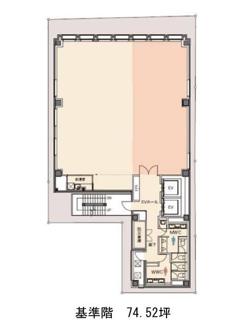
S-GATE秋葉原のテナント募集中区画
| 階数 | 面積 | 賃料(共益費含む) | 保証金 | 入居可能日 | 検討リスト | 詳細 |
|---|---|---|---|---|---|---|
| 5 | 74.52坪 | 応相談(応相談) | 応相談 | 即 |
…新着物件
アクセス
S-GATE秋葉原の物件情報
S-GATE秋葉原(千代田区東神田)は岩本町駅(A4番出口)から徒歩6分の賃貸オフィスです。清洲橋通りから少し入った柳原通りに面した角地にあります。2017年竣工の築浅物件です。外観は黒を基調としていて大きな窓が特徴的な視認性の高いビルです。エントランス内にはアロマの香りが漂い、来客者を優しく出迎えます。ICカードリーダーによるオートロックシステムは、貸室へ入室するまでに1階エレベーターホール、エレベーター内、貸室扉の3重のセキュリティを導入。また、新耐震基準の1.25倍相当強化した耐震構造と非常用発電機実装・異系統2回線受電により、BCPをバックアップします。S-GATE秋葉原は岩本町駅(A4番出口)の他に秋葉原駅(4番出口)徒歩6分、浅草橋駅(西口)徒歩7分で利用も可能です。

