東神田堀商ビル 2階
物件概要
物件番号
421-00047-20物件名
東神田堀商ビル所在地
- 東京都千代田区東神田2-4-5
- アクセスマップ
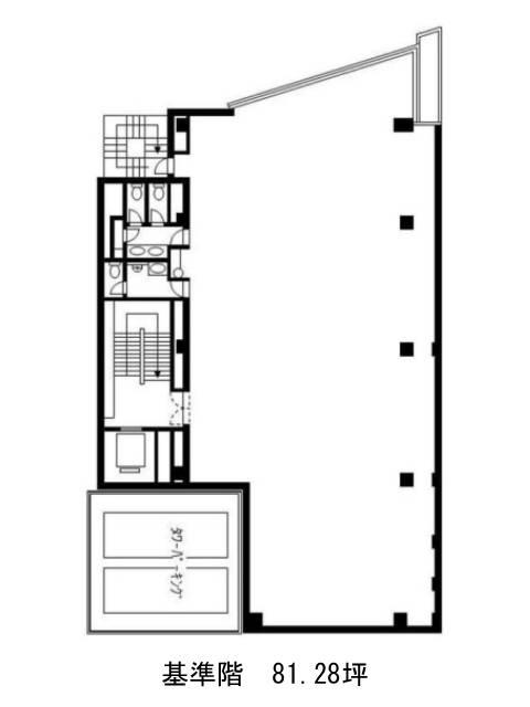
面積
81.28坪賃料(共益費含)
月額1,698,752円(20,900円/坪)
入居日
2026年2月上旬保証金
15,118,080円礼金
なし更新料
新1ケ月償却費
1ケ月竣工
1989年6月構造
S造規模
地上7階トイレ
男女別空調
個別空調エレベーター
有セキュリティ
有駐車場
有耐震
新耐震基準基準階天井高
2430mm空室延床面積
162.56坪情報更新日
2026/01/16東神田堀商ビルのテナント募集中区画
| 階数 | 面積 | 賃料(共益費含む) | 保証金 | 入居可能日 | 検討リスト | 詳細 |
|---|---|---|---|---|---|---|
| 2 | 81.28坪 | 1,698,752円/月(20,900円/坪) | 1,511万円 | 2026年2月上旬 | ||
| 3 | 81.28坪 | 1,698,752円/月(20,900円/坪) | 1,511万円 | 2026年2月上旬 |
…新着物件
アクセス
東神田堀商ビルの物件情報
東神田堀商ビル(千代田区東神田)は岩本町駅(A4番出口)から徒歩5分の賃貸オフィスです。東神田エリアに位置する本物件は、1フロア約81坪のゆとりあるオフィス空間が魅力。角地に立地しており、採光性や視認性にも恵まれたロケーションです。特徴的なのは、1階に東神田郵便局が入居している点。郵便物の出し入れがスムーズに行えるため、日常業務の効率化が図れます。基準階はワンフロアワンテナント仕様で、プライバシーやセキュリティにも配慮された設計。水回りが室内に集約されており、レイアウトの自由度も高めです。
OAフロア、個別空調、男女別トイレ、機械警備、駐車場といった設備環境も必要十分です。東神田堀商ビルは岩本町駅(A4番出口)の他に秋葉原駅(4番出口)徒歩5分、馬喰町駅(4番出口)徒歩7分で利用も可能です。

