6階は現在募集がありません
東神田INビル 6階
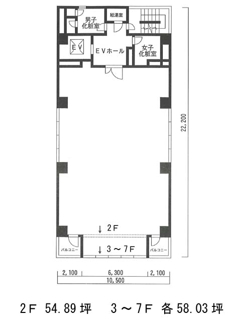
物件概要
東神田INビルのテナント募集中区画
現在、空室がございません。
アクセス
東神田INビルの物件情報
東神田INビル(千代田区東神田)は馬喰町駅(6番出口)から徒歩5分の賃貸オフィスです。東神田INビルは馬喰町駅(6番出口)の他に岩本町駅(A4番出口)徒歩6分、浅草橋駅(西口)徒歩6分で利用も可能です。

