新八光ビル 4階
物件概要
物件番号
423-00178-40物件名
新八光ビル所在地
- 東京都千代田区内神田3-22-9
- アクセスマップ
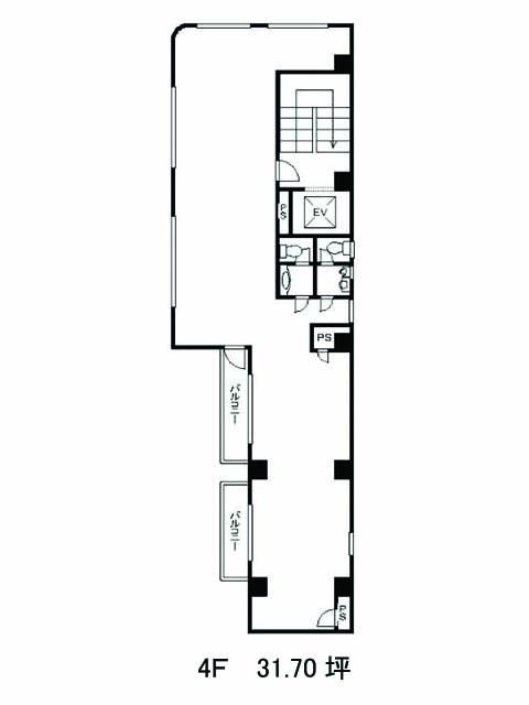
面積
31.70坪賃料(共益費含)
月額732,270円(23,100円/坪)
入居日
即保証金
5,072,000円礼金
2ケ月更新料
新1ケ月償却費
なし竣工
1994年3月構造
規模
地上5階/地下1階トイレ
男女別空調
エレベーター
有セキュリティ
駐車場
無耐震
新耐震基準基準階天井高
空室延床面積
114.17坪情報更新日
2026/02/27新八光ビルのテナント募集中区画
| 階数 | 面積 | 賃料(共益費含む) | 保証金 | 入居可能日 | 検討リスト | 詳細 |
|---|---|---|---|---|---|---|
| 2 | 44.17坪 | 1,020,327円/月(23,100円/坪) | 706万円 | 即 | ||
| 3 | 38.30坪 | 884,730円/月(23,100円/坪) | 612万円 | 即 | ||
| 4 | 31.70坪 | 732,270円/月(23,100円/坪) | 507万円 | 即 |
…新着物件
新八光ビルのアクセス
新八光ビルの物件情報
新八光ビル(千代田区内神田)は神田駅(1番出口)から徒歩2分の賃貸オフィスです。1994年竣工で、新耐震基準を満たした地上5階建てのオフィスビルです。神田警察通りから一本入ったところにありますが角地のため、視認性も高いでしょう。エレベーターは1基設置。基準階面積は約45坪。個別空調完備、光ファイバー引き込み済み、トイレは男女別の設置となっています。飲食店の営業も可能ですので、ご相談ください。徒歩圏内にコンビニエンスストアや、スーパーマーケット、カフェ、郵便局、銀行がございます。周辺には飲食店も多くありますので、食事も楽しめそうです。新八光ビルは神田駅(1番出口)の他に小川町駅(A1番出口)徒歩6分、淡路町駅(A1番出口)徒歩6分で利用も可能です。

