藤井第一ビル 3階
物件概要
物件番号
423-00234-30物件名
藤井第一ビル所在地
- 東京都千代田区内神田1-11-11
- アクセスマップ
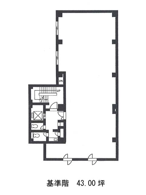
面積
43.00坪賃料(共益費含)
月額567,600円(13,200円/坪)
入居日
即保証金
3,096,000円礼金
なし更新料
なし償却費
2ケ月竣工
1978年3月構造
RC規模
地上6階トイレ
男女別空調
個別空調エレベーター
有セキュリティ
有駐車場
無耐震
旧耐震基準基準階天井高
空室延床面積
86.00坪情報更新日
2026/02/25藤井第一ビルのテナント募集中区画
| 階数 | 面積 | 賃料(共益費含む) | 保証金 | 入居可能日 | 検討リスト | 詳細 |
|---|---|---|---|---|---|---|
| 3 | 43.00坪 | 567,600円/月(13,200円/坪) | 309万円 | 即 | ||
| 4 | 43.00坪 | 567,600円/月(13,200円/坪) | 309万円 | 即 |
…新着物件
藤井第一ビルのアクセス
藤井第一ビルの物件情報
藤井第一ビル(千代田区内神田)は神田駅(西口)から徒歩6分の賃貸オフィスです。複数の駅・路線が徒歩圏内にある当ビル。最寄り駅からはやや歩きますが、コンビニエンスストアや飲食店なども点在しており日常利用に困りません。
基準階は約43坪の整形に近い無柱空間で、レイアウトしやすい構造が特徴。貸室とは別にエレベーターホールが設けられ、水回りも室外共用部に集約されているため、限られた面積を効率的に使える設計です。
また、機械警備が導入されており、セキュリティ面でも安心感がある点は注目ポイント。過度な装飾はなくとも、必要な要素がしっかり整った実用性重視の中小オフィスといえるでしょう。藤井第一ビルは神田駅(西口)の他に淡路町駅(A6番出口)徒歩6分、新御茶ノ水駅(B6番出口)徒歩6分で利用も可能です。

