8階は現在募集がありません
1フロア募集区画あり

KR GINZAⅡ 8階

前の写真 次の写真

物件概要

物件番号

634-00181-90

物件名

KR GINZAⅡ

所在地

面積

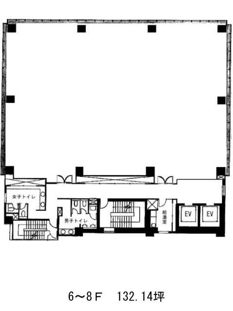
132.14坪

賃料(共益費含)


入居日

募集終了

保証金

礼金

更新料

償却費

竣工

2008年9月

構造

S造

規模

地上8階/地下1階

トイレ

男女別

空調

個別空調

エレベーター

セキュリティ

駐車場

耐震

新耐震基準

基準階天井高

2700mm

空室延床面積

157.45坪

最寄駅

情報更新日

2026/04/20

KR GINZAⅡのテナント募集中区画

階数 面積 賃料(共益費含む) 保証金 入居可能日 検討リスト 詳細
4 157.45坪 6,061,825円/月(38,500円/坪) 4,408万円
…新着物件

KR GINZAⅡのアクセス

KR GINZAⅡの物件情報

KR GINZAⅡ(中央区銀座)は新富町駅(1番出口)から徒歩3分の賃貸オフィスです。
異なる色調のガラスを組み合わせ、スタイリッシュなデザインをしています。敷地内外の植栽がエントランスを鮮やかに彩ります。駐車場、EV2基、OAフロア、空調は個別式、給湯室、機械警備とハイスペックな仕様。室内は2700㎜の天井、三面採光の明るさ、整形な長方形の無柱空間で開放感があるでしょう。出入口が複数あり動線にバリエーションがもてそうです。共用部はブラックでまとめられ、すっきりと整えられています。
KR GINZAⅡは新富町駅(1番出口)の他に東銀座駅(A7番出口)徒歩6分、銀座一丁目駅(11番出口)徒歩6分で利用も可能です。

近隣のエリア・駅から探す