中島商事ビル 8階
物件概要
物件番号
634-00586-192物件名
中島商事ビル所在地
- 東京都中央区銀座8-5-6
- アクセスマップ
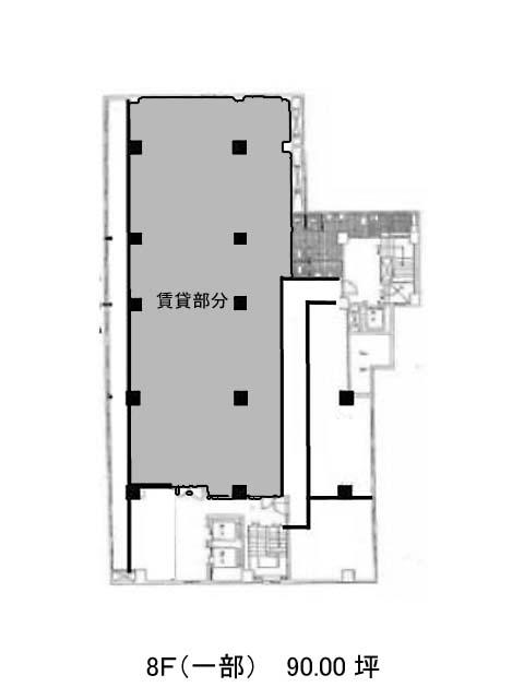
面積
90.00坪賃料(共益費含)
月額2,277,000円(25,300円/坪)
入居日
即保証金
21,600,000円礼金
なし更新料
なし償却費
2ケ月竣工
1963年6月構造
SRC規模
地上9階/地下3階トイレ
男女別空調
個別空調エレベーター
有セキュリティ
有駐車場
無耐震
耐震補強済み基準階天井高
空室延床面積
188.00坪情報更新日
2025/12/10中島商事ビルのテナント募集中区画
…新着物件
アクセス
中島商事ビルの物件情報
中島商事ビル(中央区銀座)は新橋駅(3番出口)から徒歩4分の賃貸オフィスです。黒い外壁に等間隔で並ぶ窓が美しく、エントランスは茶色い石張りで重厚感があります。共用部は白い壁面で明るく造られており外観とのメリハリがあります。テナントが多数入り、周辺エリアに更なる彩りを与えるでしょう。個別空調・OAフロア・EV3基があり24時間使用可能です。ビル全体に清潔感があり、築年数を感じさせない良い管理状態です。前面の並木通りは飲食店が多く常に賑わっております。名前の通り並木の緑が豊富で、道行く人々の目を癒してくれるでしょう。中島商事ビルは新橋駅(3番出口)の他に銀座駅(B3番出口)徒歩6分、内幸町駅(出口)徒歩7分で利用も可能です。

