Eビル 3階新着
物件概要
物件番号
637-00064-41物件名
Eビル所在地
- 東京都中央区新川2-17-12
- アクセスマップ
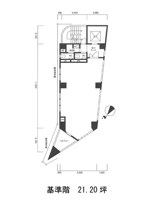
面積
21.20坪賃料(共益費含)
月額373,120円(17,600円/坪)
入居日
2026年9月保証金
3,392,000円礼金
なし更新料
新1ケ月償却費
2ケ月竣工
1990年11月構造
SRC規模
地上10階トイレ
男女別空調
個別空調エレベーター
有セキュリティ
駐車場
無耐震
新耐震基準基準階天井高
空室延床面積
21.20坪情報更新日
2026/03/02Eビルのテナント募集中区画
| 階数 | 面積 | 賃料(共益費含む) | 保証金 | 入居可能日 | 検討リスト | 詳細 |
|---|---|---|---|---|---|---|
| 3 | 21.20坪 | 373,120円/月(17,600円/坪) | 339万円 | 2026年9月 |
…新着物件
Eビルのアクセス
Eビルの物件情報
Eビル(中央区新川)は八丁堀駅(B4番出口)から徒歩3分の賃貸オフィスです。Eビルは八丁堀駅(B4番出口)の他に茅場町駅(1番出口)徒歩8分、宝町駅(A2番出口)徒歩12分で利用も可能です。

