+SHIFT GINZA EAST 3階
物件概要
物件番号
638-00130-21物件名
+SHIFT GINZA EAST所在地
- 東京都中央区新富1-8-9
- アクセスマップ
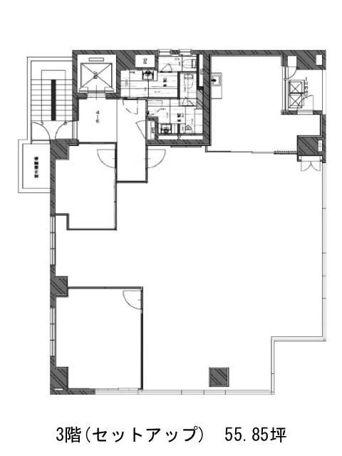
面積
55.85坪賃料(共益費含)
月額1,474,440円(26,400円/坪)
入居日
即保証金
9,382,800円礼金
なし更新料
なし償却費
なし竣工
1992年1月構造
SRC規模
地上9階/地下1階トイレ
男女別空調
個別空調エレベーター
有セキュリティ
有駐車場
有耐震
新耐震基準基準階天井高
空室延床面積
167.55坪情報更新日
2025/12/03+SHIFT GINZA EASTのテナント募集中区画
| 階数 | 面積 | 賃料(共益費含む) | 保証金 | 入居可能日 | 検討リスト | 詳細 |
|---|---|---|---|---|---|---|
| 3 | 55.85坪 | 1,474,440円/月(26,400円/坪) | 938万円 | 即 | ||
| 5 | 55.85坪 | 1,474,440円/月(26,400円/坪) | 938万円 | 即 | ||
| 8 | 55.85坪 | 1,474,440円/月(26,400円/坪) | 938万円 | 2025年12月下旬 |
…新着物件
アクセス
+SHIFT GINZA EASTの物件情報
+SHIFT GINZA EAST(中央区新富)は新富町駅(3番出口)から徒歩4分の賃貸オフィスです。2018年に大規模リニューアルを実施し、現代的なデザインと機能性を兼ね備えたオフィスビル。特にエントランスホールは、木目や石材など異なる素材をバランスよく組み合わせており、上質で洗練された印象を与えます。共用部の美しさは来訪者への第一印象にもつながるポイントです。
1フロア約55坪。セットアップオフィス区画も用意されているため、家具や内装付きのスピード入居を検討している企業にもおすすめです。
また、屋上にはリフレッシュスペースを完備。都心にありながら、ひと息つける空間がしっかり確保されているのは嬉しいポイント。ちょっとした休憩や打ち合わせなど、働き方に“抜け感”をプラスできる環境です。+SHIFT GINZA EASTは新富町駅(3番出口)の他に八丁堀駅(出口)徒歩5分、宝町駅(A2番出口)徒歩7分で利用も可能です。

