COLOR・US銀座東 2階新着
物件概要
物件番号
638-00062-44物件名
COLOR・US銀座東所在地
- 東京都中央区新富2-8-1
- アクセスマップ
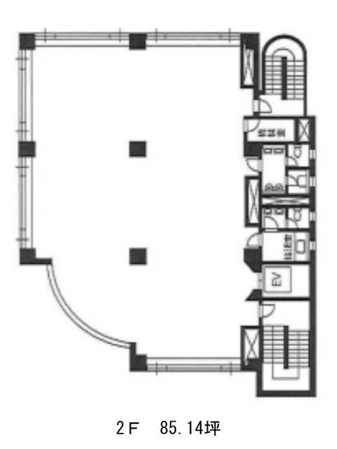
面積
80.38坪賃料(共益費含)
:応相談応相談
入居日
2026年9月上旬保証金
応相談礼金
なし更新料
なし償却費
なし竣工
1988年10月構造
SRC規模
地上8階/地下1階トイレ
男女別空調
個別空調エレベーター
有セキュリティ
有駐車場
有耐震
新耐震基準基準階天井高
2500mm空室延床面積
561.83坪情報更新日
2026/03/03COLOR・US銀座東のテナント募集中区画
…新着物件
COLOR・US銀座東のアクセス
COLOR・US銀座東の物件情報
COLOR・US銀座東(中央区新富)は新富町駅(3番出口)から徒歩2分の賃貸オフィスです。1988年竣工、鉄骨鉄筋コンクリート造の地上8階、地下1階の建物です。外観は、全体的にグレーを基調とした色合いで、重厚感があり落ち着いた印象です。基準階は約92坪あり、室内は長方形の整形オフィスの為、様々なレイアウトに対応出来るでしょう。設備面は、男女別トイレ、OAフロア、光ファイバー、個別空調、エレベーターは1基設置されています。また、駐車場も完備しているので、社用車を使う場合も便利です。周辺には、コンビニや飲食店が多数ありますので、ランチにも困りません。COLOR・US銀座東は新富町駅(3番出口)の他に築地駅(4番出口)徒歩5分、八丁堀駅(出口)徒歩7分で利用も可能です。

