growth ginza east 4階
物件概要
物件番号
638-00066-20物件名
growth ginza east所在地
- 東京都中央区新富2-7-4
- アクセスマップ
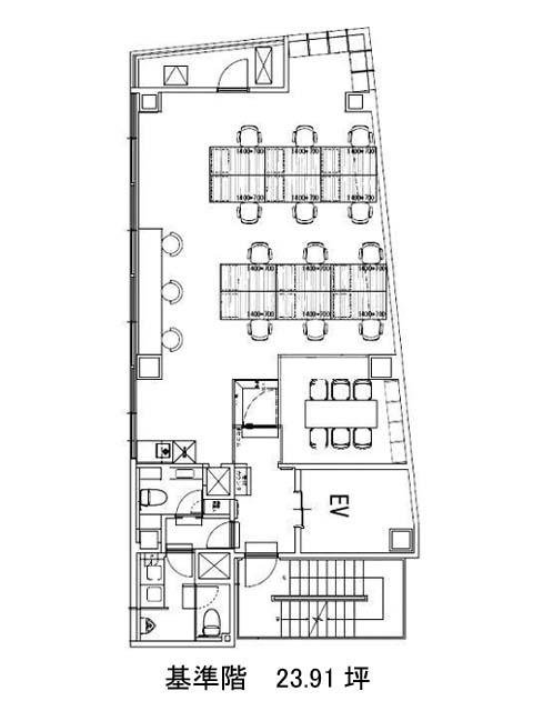
面積
23.91坪賃料(共益費含)
月額604,923円(25,300円/坪)
入居日
2026年6月上旬保証金
2,199,720円礼金
なし更新料
なし償却費
なし竣工
1987年2月構造
S造規模
地上9階トイレ
男女別空調
個別空調エレベーター
有セキュリティ
有駐車場
無耐震
新耐震基準基準階天井高
空室延床面積
23.91坪情報更新日
2026/02/10growth ginza eastのテナント募集中区画
| 階数 | 面積 | 賃料(共益費含む) | 保証金 | 入居可能日 | 検討リスト | 詳細 |
|---|---|---|---|---|---|---|
| 4 | 23.91坪 | 604,923円/月(25,300円/坪) | 219万円 | 2026年6月上旬 |
…新着物件
growth ginza eastのアクセス
growth ginza eastの物件情報
growth ginza east(中央区新富)は新富町駅(3番出口)から徒歩2分の賃貸オフィスです。growth ginza eastは新富町駅(3番出口)の他に築地駅(4番出口)徒歩5分、八丁堀駅(出口)徒歩7分で利用も可能です。

