8階は現在募集がありません
1フロア募集区画あり

growth ginza east 8階

前の写真 次の写真

物件概要

物件番号

638-00066-50

物件名

growth ginza east

所在地

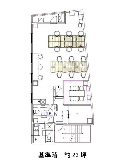
面積

23.91坪

賃料(共益費含)


入居日

募集終了

保証金

礼金

更新料

償却費

竣工

1987年2月

構造

S造

規模

地上9階

トイレ

男女別

空調

個別空調

エレベーター

セキュリティ

駐車場

耐震

新耐震基準

基準階天井高

空室延床面積

23.91坪

最寄駅

情報更新日

2026/04/23

growth ginza eastのテナント募集中区画

階数 面積 賃料(共益費含む) 保証金 入居可能日 検討リスト 詳細
4 23.91坪 604,923円/月(25,300円/坪) 219万円 2026年6月上旬
…新着物件

growth ginza eastのアクセス

growth ginza eastの物件情報

growth ginza east(中央区新富)は新富町駅(3番出口)から徒歩2分の賃貸オフィスです。
growth ginza eastは新富町駅(3番出口)の他に築地駅(4番出口)徒歩5分、八丁堀駅(出口)徒歩7分で利用も可能です。

近隣のエリア・駅から探す