growth ginza eastのテナント募集中区画
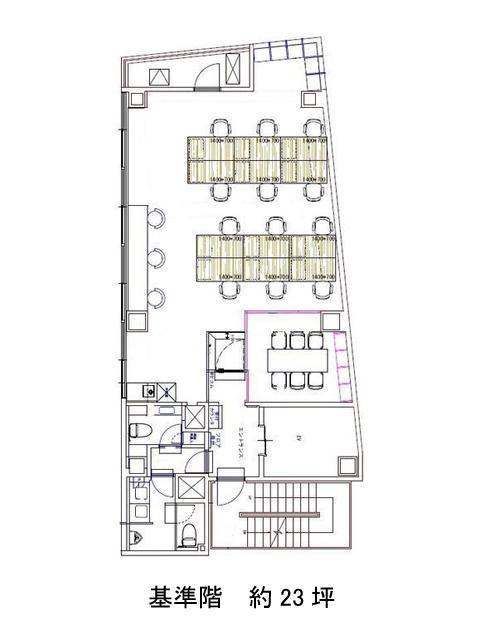
| 階数 | 面積 | 賃料(共益費含む) | 保証金 | 入居可能日 | 検討リスト | 詳細 |
|---|---|---|---|---|---|---|
| 7 | 23.89坪 | 604,417円/月(25,300円/坪) | 274万円 | 即 |
…新着物件
アクセス
growth ginza eastの物件情報
growth ginza east(中央区新富)は新富町駅(3番出口)から徒歩2分の賃貸オフィスです。growth ginza eastは新富町駅(3番出口)の他に築地駅(4番出口)徒歩5分、八丁堀駅(出口)徒歩7分で利用も可能です。

