5階は現在募集がありません
あきとみビル 5階
物件概要
あきとみビルのテナント募集中区画
現在、空室がございません。
アクセス
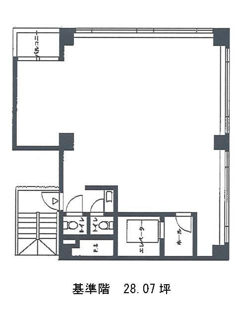
あきとみビルの物件情報
あきとみビル(中央区東日本橋)は馬喰町駅(5番出口)から徒歩2分の賃貸オフィスです。あきとみビルは馬喰町駅(5番出口)の他に東日本橋駅(出口)徒歩4分、浅草橋駅(A1番出口)徒歩4分で利用も可能です。

