光陽ビル 2階
物件概要
物件番号
642-00324-1物件名
光陽ビル所在地
- 東京都中央区東日本橋1-5-6
- アクセスマップ
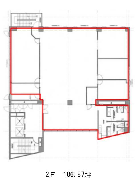
面積
106.87坪賃料(共益費含)
月額2,938,925円(27,500円/坪)
入居日
相談保証金
23,511,400円礼金
なし更新料
なし償却費
なし竣工
1996年10月構造
SRC規模
地上8階/地下2階トイレ
男女別空調
個別空調エレベーター
有セキュリティ
駐車場
有耐震
新耐震基準基準階天井高
空室延床面積
338.23坪情報更新日
2026/02/06光陽ビルのテナント募集中区画
| 階数 | 面積 | 賃料(共益費含む) | 保証金 | 入居可能日 | 検討リスト | 詳細 |
|---|---|---|---|---|---|---|
| 2 | 106.87坪 | 2,938,925円/月(27,500円/坪) | 2,351万円 | 相談 | ||
| 3 | 115.68坪 | 2,290,464円/月(19,800円/坪) | 1,735万円 | 相談 | ||
| 4 | 115.68坪 | 2,290,464円/月(19,800円/坪) | 1,735万円 | 相談 |
…新着物件
光陽ビルのアクセス
光陽ビルの物件情報
光陽ビル(中央区東日本橋)は東日本橋駅(B1番出口)から徒歩3分の賃貸オフィスです。光陽ビルは東日本橋駅(B1番出口)の他に馬喰横山駅(A4番出口)徒歩5分、浜町駅(A1番出口)徒歩5分で利用も可能です。

