コセイビル 6階新着
物件概要
物件番号
642-00007-60物件名
コセイビル所在地
- 東京都中央区東日本橋2-9-2
- アクセスマップ
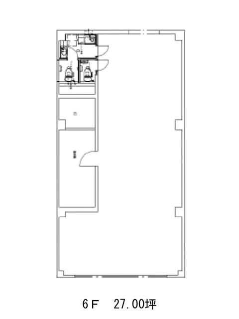
面積
27.00坪賃料(共益費含)
月額386,100円(14,300円/坪)
入居日
2026年5月中旬保証金
2,376,000円礼金
なし更新料
新1ケ月償却費
2ケ月竣工
1973年9月構造
SRC規模
地上7階/地下1階トイレ
不明空調
個別空調エレベーター
有セキュリティ
駐車場
無耐震
旧耐震基準基準階天井高
空室延床面積
27.00坪情報更新日
2026/04/03コセイビルのテナント募集中区画
| 階数 | 面積 | 賃料(共益費含む) | 保証金 | 入居可能日 | 検討リスト | 詳細 |
|---|---|---|---|---|---|---|
| 6 | 27.00坪 | 386,100円/月(14,300円/坪) | 237万円 | 2026年5月中旬 |
…新着物件
コセイビルのアクセス
コセイビルの物件情報
コセイビル(中央区東日本橋)は東日本橋駅(出口)から徒歩3分の賃貸オフィスです。コセイビルは東日本橋駅(出口)の他に馬喰横山駅(A4番出口)徒歩4分、馬喰町駅(5番出口)徒歩5分で利用も可能です。

