八丁堀フロンティアビル 3階
物件概要
物件番号
665-00236-30物件名
八丁堀フロンティアビル所在地
- 東京都中央区八丁堀4-9-9
- アクセスマップ
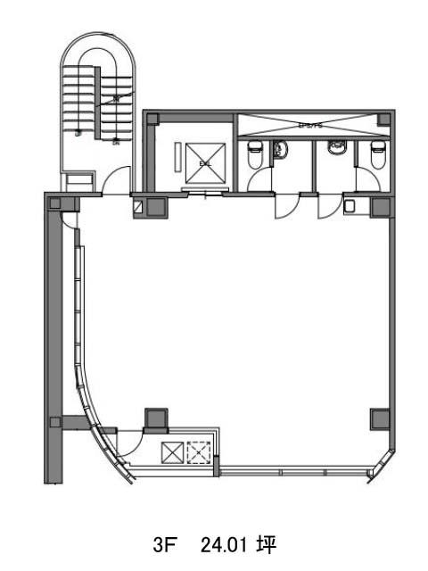
面積
24.01坪賃料(共益費含)
月額475,398円(19,800円/坪)
入居日
2026年8月上旬保証金
864,360円礼金
なし更新料
新1ケ月償却費
1ケ月竣工
1991年9月構造
SRC規模
地上7階/地下1階トイレ
男女別空調
個別空調エレベーター
有セキュリティ
駐車場
無耐震
新耐震基準基準階天井高
2900mm空室延床面積
24.01坪情報更新日
2026/03/03八丁堀フロンティアビルのテナント募集中区画
| 階数 | 面積 | 賃料(共益費含む) | 保証金 | 入居可能日 | 検討リスト | 詳細 |
|---|---|---|---|---|---|---|
| 3 | 24.01坪 | 475,398円/月(19,800円/坪) | 86万円 | 2026年8月上旬 |
…新着物件
八丁堀フロンティアビルのアクセス
八丁堀フロンティアビルの物件情報
八丁堀フロンティアビル(中央区八丁堀)は八丁堀駅(B3番出口)から徒歩2分の賃貸オフィスです。新大橋通りを東へ入ってすぐにある、地上7階・地下1階建てのビルです。交通量が多くない、落ち着いた通りに面しています。白い壁とガラスカーテンウォールを組み合わせた、清潔感のある外観です。室内は、14坪ほどから24坪ほどの、手ごろな広さの部屋があります。空き状況につきましては、お問い合わせください。1階にある「中俣酒造 茂助」は、薩摩指宿にて百余年の歴史を誇る中俣酒造直営の居酒屋です。限定の芋焼酎と共に、全国各地の漁港・市場から直送される鮮魚が楽しめます。八丁堀フロンティアビルは八丁堀駅(B3番出口)の他に新富町駅(7番出口)徒歩7分、宝町駅(A2番出口)徒歩8分で利用も可能です。

